TOP | WORKS | classic & modern

classic & modern

建築はクラシックが好きだけど、家具はモダンが好き。
ホテルのようなすっきりした空間が好き。
そんなお施主様のイメージから始まったこのお家。

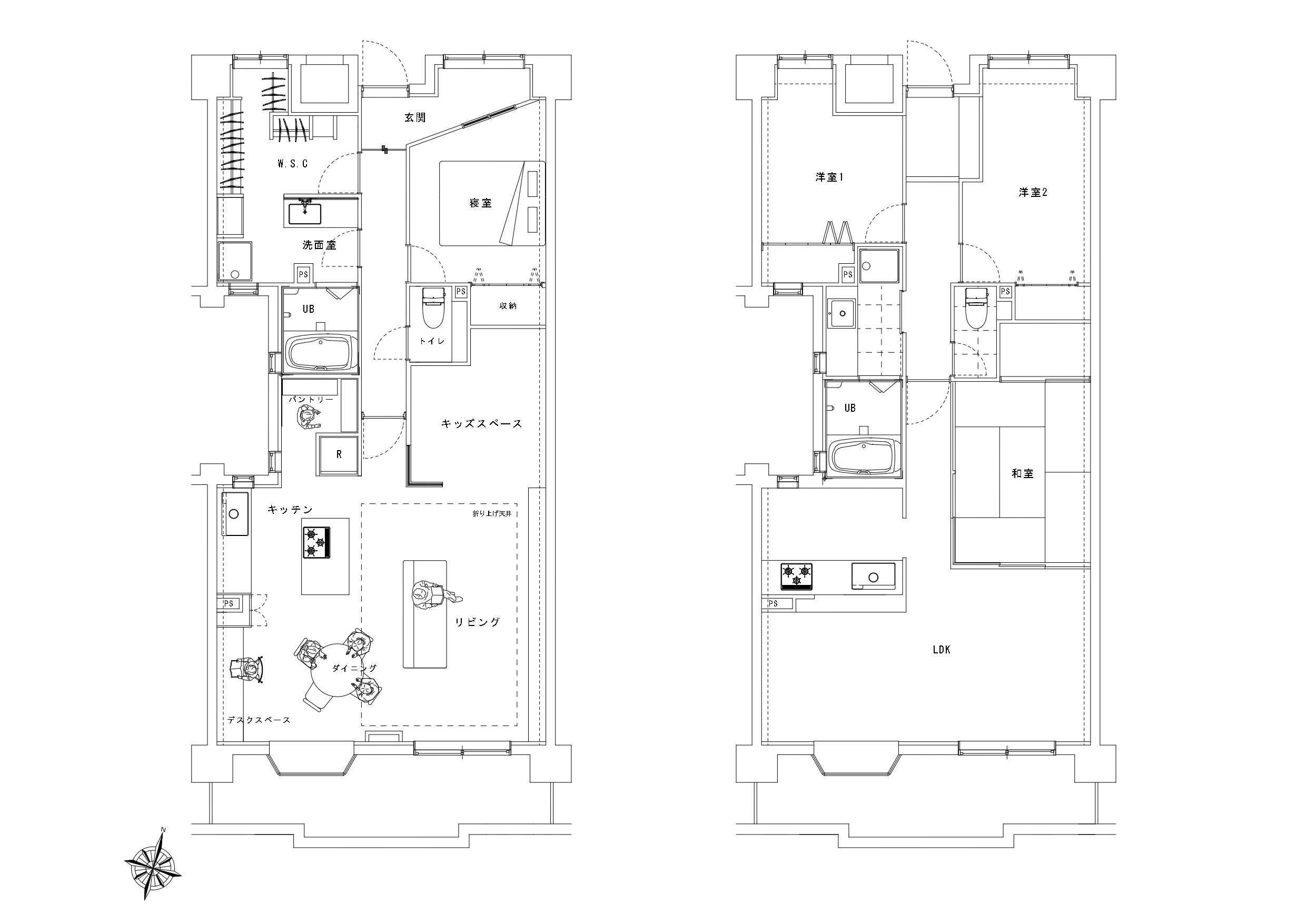
廊下は建具までモールディングで全面に装飾を施しクラシックに。
リビングは装飾の量を減らし、造作キッチンもミニマルなデザインにすることでクラシックさはありつつ、モダンな家具が照明が映えるように。

テレビの代わりにプロジェクタースクリーンを天井に埋め込みました。
パントリーを設けたりデスクや本棚も造作することですきっりとしたホテルのような空間に。

classic & modern

建築はクラシックが好きだけど、家具はモダンが好き。
ホテルのようなすっきりした空間が好き。
そんなお施主様のイメージから始まったこのお家。

廊下は建具までモールディングで全面に装飾を施しクラシックに。
リビングは装飾の量を減らし、造作キッチンもミニマルなデザインにすることでクラシックさはありつつ、モダンな家具が照明が映えるように。

テレビの代わりにプロジェクタースクリーンを天井に埋め込みました。
パントリーを設けたりデスクや本棚も造作することですきっりとしたホテルのような空間に。

 

 

 

 

 

 

 
 
  
 
 
 
 
 
 
 
 
 
 
 
 
 

 

所在:大阪北摂
種類:マンションリノベーション
面積:77 m²
完工:2021 年 2月
施工費:1050万円