TOP | WORKS | compact LDK

compact LDK

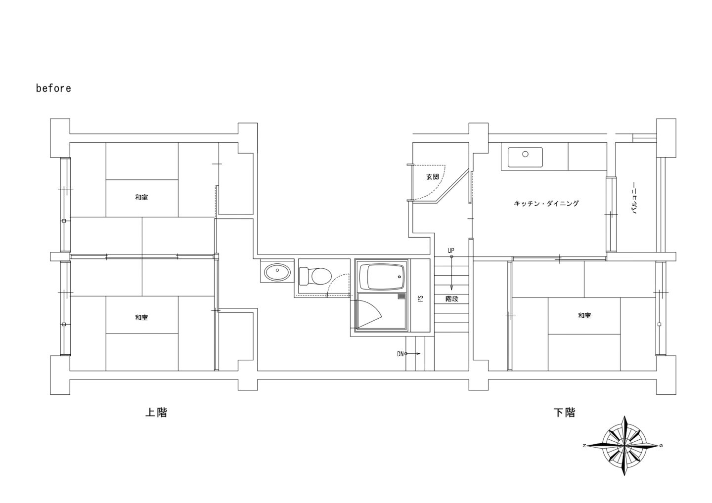
物件探しからご依頼いただき、希望エリアで見つけた家は築50年超のメゾネットタイプのビンテージマンション。
築古マンションはリフォーム済みの物件が多いですが、一度もリフォームのないレアでお得なリノベ向き物件でした。
LDKは南側に配置されていたが向いの建物のせいでやや解放感が劣る。
逆に北側は大きな腰窓からのリバービューで最高の抜け感。
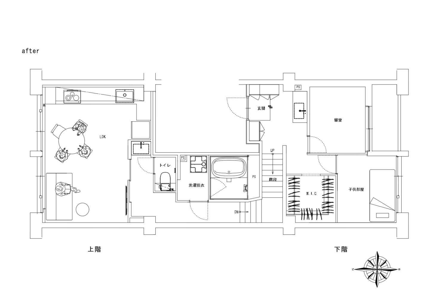
北向きなのに川の反射光でとても明るかったので、下階南側に配置されていたLDKを上階北側に移動される大胆なリノベーションを提案しました。

compact LDK

物件探しからご依頼いただき、希望エリアで見つけた家は築50年超のメゾネットタイプのビンテージマンション。
築古マンションはリフォーム済みの物件が多いですが、一度もリフォームのないレアでお得なリノベ向き物件でした。
LDKは南側に配置されていたが向いの建物のせいでやや解放感が劣る。
逆に北側は大きな腰窓からのリバービューで最高の抜け感。
北向きなのに川の反射光でとても明るかったので、下階南側に配置されていたLDKを上階北側に移動される大胆なリノベーションを提案しました。

12帖のコンパクトなLDKながら家電も食器も全部収納できる壁付けキッチンを造作。
 
 
レンジフードもダウンライトも吊戸棚に組み込んだ。

 

丸テーブルを採用して広々とした空間を確保。

 

 

リノベーション造作キッチン
2つの窓を枠でつなげて大きな一つの窓のように。

 

造作キッチン

 

モールテックス

 

造作キッチン
グレージュカラーの空間だからこそ、白が映える。
 
トイレの手洗い台兼サブ洗面台

 

 

 

 

格子窓
R入口がかわいいW.I.C
 
玄関正面すぐの洗面台
 
 
 
before
室内窓
 
 
 

所在:大阪市北区
種類:マンションリノベーション
築年数:築53年
面積:69.85 m²
完工:2024年 5月
工事費:1500万円