TOP | WORKS | minimal living

リノベーション LDK

minimal living

Instagramを見て、リノベするなら絶対CLOCKのデザインがいいとDMいただき、物件探しからお手伝いさせていただいたMさんご夫婦。 見つけたのは築25年のタワーマンション。高層階ならではの景色を気に入ったものの、最初は部屋の形的にリノベのイメージがわかないという理由で候補から外してましたが、
CLOCKのラフプラン提案でリノベでこんなに間取りが変わるなら自分たちの理想のお家になるとうことで購入・リノベすることに。

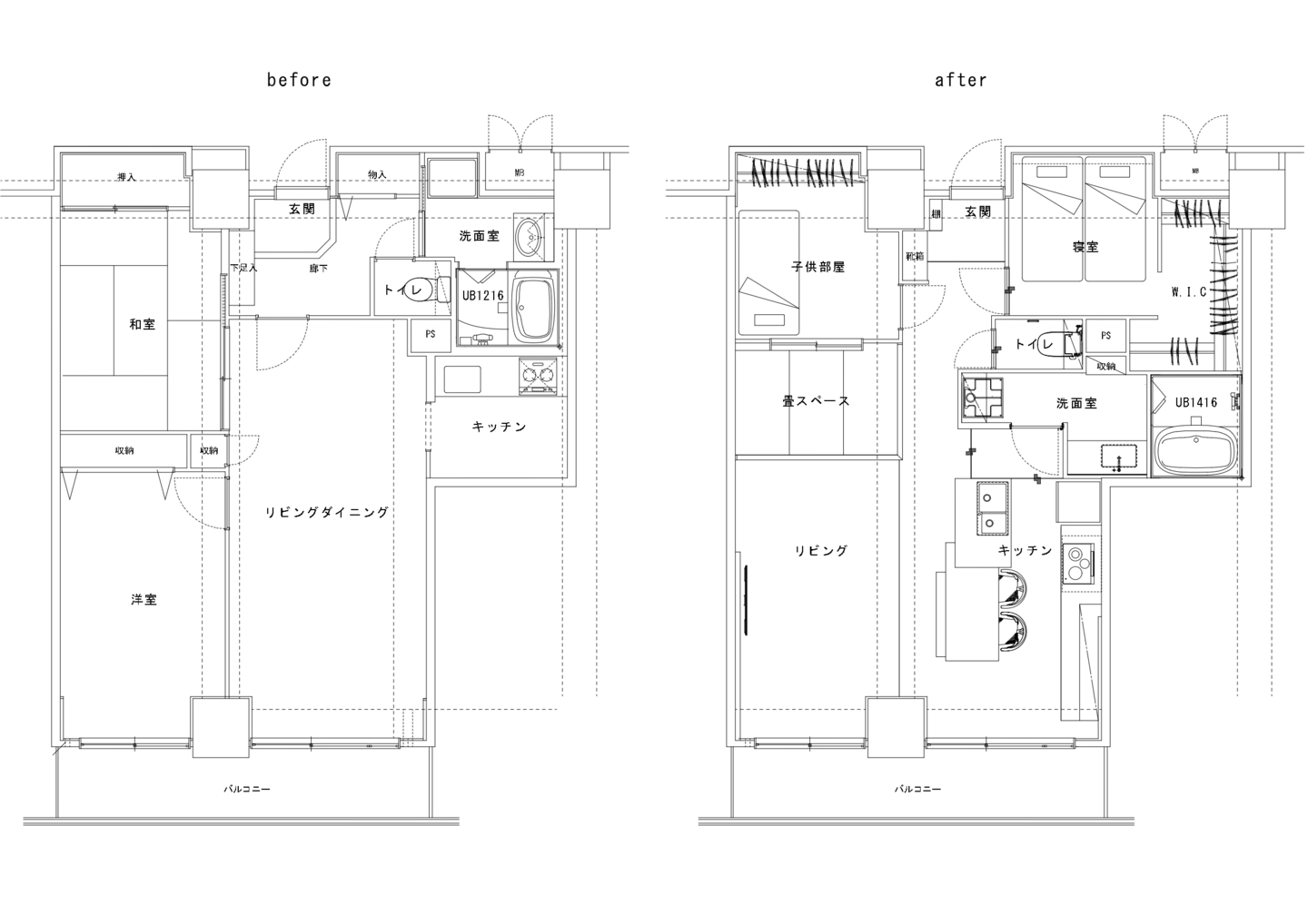
シンプルモダンの中にも和の要素も入れたいということで、小さな小上がり畳スペースも確保。
限られた面積を最大限生かすためリビングドアはあえて設けず廊下ほぼゼロに。コンパクトなのに広がりを感じる住まい。

minimal living

Instagramを見て、リノベするなら絶対CLOCKのデザインがいいとDMいただき、物件探しからお手伝いさせていただいたMさんご夫婦。 見つけたのは築25年のタワーマンション。高層階ならではの景色を気に入ったものの、最初は部屋の形的にリノベのイメージがわかないという理由で候補から外してましたが、
CLOCKのラフプラン提案でリノベでこんなに間取りが変わるなら自分たちの理想のお家になるとうことで購入・リノベすることに。

シンプルモダンの中にも和の要素も入れたいということで、小さな小上がり畳スペースも確保。
限られた面積を最大限生かすためリビングドアはあえて設けず廊下ほぼゼロに。コンパクトなのに広がりを感じる住まい。

造作キッチン

 
テーブル一体型のⅡ型造作キッチン

 
コンロ台とつながる食器棚。

リノベーション造作キッチン

 
マットブラックな2ボウルシンク。

造作キッチン

 

モールテックス

 

造作キッチン

 
リビングゆるく空間を分けた3帖の畳スペース。

 

 
構造上取れない梁はモルタル塗りでアクセントに。

 
レースカーテンのみとした。

格子窓

 
リビングドアは設けず、玄関からの広がりを造った。

室内窓

 

寝室
 
寝室は梁をいかして間接照明に。
クローゼット
  
 
造作洗面台
 
タワーマンションならではの夜景。
 
 
 
 
before
 
 

所在:大阪市福島区
種類:マンションリノベーション
築年数:築25年
面積:68.15 m²
完工:2024年 1月
施工費:1,180万円(税別)