TOP | WORKS | modern and concrete

modern and concrete

キッチandダイニングはコンパクトながらもフルオーダーで造作することで収納や作業動線はもちろん、デザインも妥協なし。 リビングに造作した4.2mの収納家具は高さを45cmに抑えることで空間を圧迫することなく収納スペースを確保し、ベンチにもなる。
 
天井にむき出しにされたコンクリートや鉄管配管、TV面のモルタル壁などの素材感や武骨さを少し足すことで全体的に「きれいすぎない。」ようにデザインした。
 
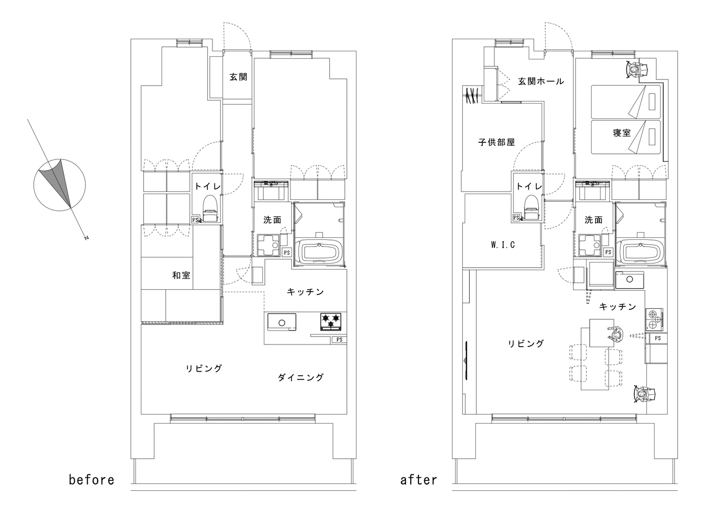
既存の間取りをいかしたところも多く、コストも抑えたリノベーション。

modern and concrete

キッチandダイニングはコンパクトながらもフルオーダーで造作することで収納や作業動線はもちろんデザインも妥協なし。 リビングに造作した4.2mの収納家具は高さを45cmに抑えることで空間を圧迫することなく収納スペースを確保し、ベンチにもなる。
 
天井にむき出しにされたコンクリートや鉄管配管、TV面のモルタル壁などの素材感や武骨さを少し足すことで全体的に「きれいすぎない。」ようにデザインした。
 
既存の間取りをいかしたところも多く、コストも抑えたリノベーション。

 

 

 

 

 

 

 
 
  
 
 
 
 
 
 

 

所在:大阪市
種類:マンションリノベーション
面積:68.71 m²
完工:2022年 1月
施工費:950万円