TOP | WORKS | natural light

natural light

物件探しからお手伝いさせていただいたこのお家。
見つけたマンションは立地・広さ・採光どれも施主様の希望通り。
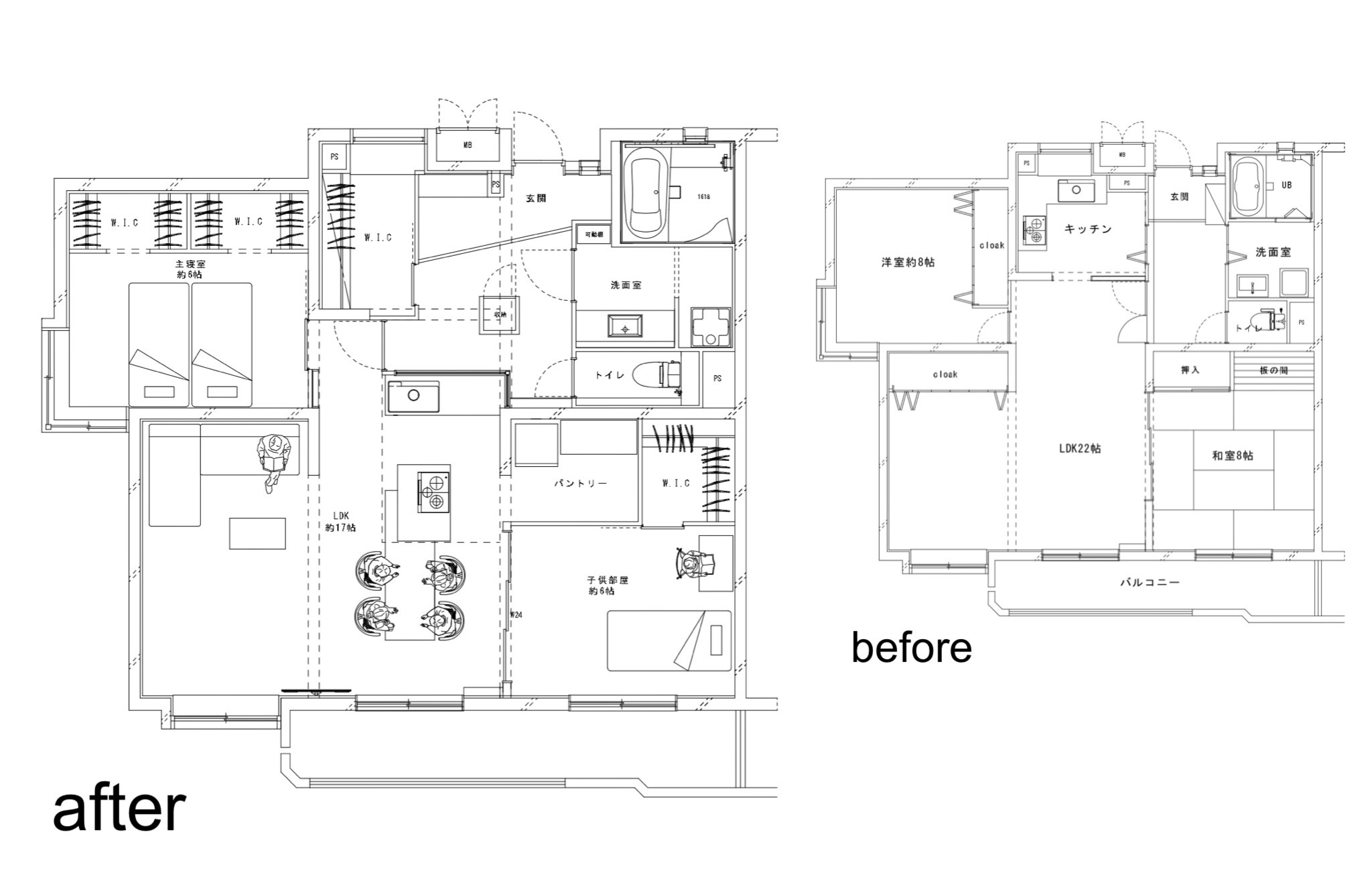
ただ、一般的に間取りの自由度が低いとされる壁式構造でした。

そこで私たちは現地にて抜ける壁、抜けない壁、最終の排水位置などの細かな調査を行いました。
工夫次第で、キッチンの大移動や、玄関・お風呂・洗面の拡張が可能と判断し、
購入を決断いただきこのプロジェクトが開始しました。

セパレートキッチンはこの家に合わせて設計デザインしたCLOCKオリジナル。
行き止まりのないキッチンは家事動線もよく、友人とのパーティーや家族みんなで料理もできます。
天板はモールテックス材を使用しコンロ台はシンプルな四角い箱。
テーブルは板を重ねただけのようなシンプルデザインにしてキッチンと一体にしました。
存在感はあるけどシンプルで空間にとけこむようなミニマルなデザインを意識しました。

玄関とキッチンの間に大きな採光窓を設けたり、
もともと暗かった場所はW.I.Cにするなどいろいろな工夫により、
どこにいても自然光が差し込む明るいお家になりました。

natural light

物件探しからお手伝いさせていただいたこのお家。
見つけたマンションは立地・広さ・採光どれも施主様の希望通り。
ただ、一般的に間取りの自由度が低いとされる壁式構造でした。

そこで私たちは現地にて抜ける壁、抜けない壁、最終の排水位置などの細かな調査を行いました。
工夫次第で、キッチンの大移動や、玄関・お風呂・洗面の拡張が可能と判断し、
購入を決断いただきこのプロジェクトが開始しました。

セパレートキッチンはこの家に合わせて設計デザインしたCLOCKオリジナル。
行き止まりのないキッチンは家事動線もよく、友人とのパーティーや家族みんなで料理もできます。
天板はモールテックス材を使用しコンロ台はシンプルな四角い箱。
テーブルは板を重ねただけのようなシンプルデザインにしてキッチンと一体にしました。
存在感はあるけどシンプルで空間にとけこむようなミニマルなデザインを意識しました。

玄関とキッチンの間に大きな採光窓を設けたり、
もともと暗かった場所はW.I.Cにするなどいろいろな工夫により、
どこにいても自然光が差し込む明るいお家になりました。

 

 

 

 

 

 
 
  
 
 

 

所在:大阪市
種類:マンションリノベーション
面積:91.47 m²
完工:2021 年 6 月
施工費:1100 万円