TOP | WORKS | silence modern

silence modern

使用する色の種類や彩度を抑え、家電や家具のトーンまで空間全体に調和させることで、目に入る色の情報量を最小限に。キッチンや洗面にはマーブル模様のセラミックタイルを採用し、上質な質感とほどよい高級感を演出。視覚的な静けさが心地よい、落ち着きに満ちた住まいに仕上げました。

silence modern

使用する色の種類や彩度を抑え、家電や家具のトーンまで空間全体に調和させることで、目に入る色の情報量を最小限に。キッチンや洗面にはマーブル模様のセラミックタイルを採用し、上質な質感とほどよい高級感を演出。視覚的な静けさが心地よい、落ち着きに満ちた住まいに仕上げました。

 
 
造作キッチン

既存のキッチン位置から大きく移動はせずにシンクとコンロを分けたⅡ型設計した。
 

前面左部のタイルに厚みを持たせアシンメトリーにデザインした。

 

サイドから天板へと大胆なマーブル模様が繋がるのは約3m×1.5mの大判タイルならでは。
 

リノベーション造作キッチン

シンク横にBLANCOのクォーツシンク・リクシルのタッチレス水栓、ブラックで統一。
レンジフードは隠れるように設計。
 

造作キッチン

使用時に開けっ放しにできる収納扉を採用した小型パントリー
 

モールテックス

動線を考えて丸テーブルを採用した。
 

造作キッチン

 

リビングは必要最低限に設計。床材を切り替えて空間を緩やかに分けた。
 

廊下へ続く壁にR(曲面)を取り入れ陰影を緩やかに。リビングドアを無くことで廊下との境界を曖昧にした。
 

 

リビング横の部屋は子供の勉強&音楽部屋に。約3帖の空間を無駄なく使うためL型のデスクと棚を造作した。
 

格子窓

寝室はベッド脇を通ることができるギリギリの寸法で設計。
 

室内窓

天井高を最大限生かしたW.I.Cを設けた。

 
洗面台もキッチンとデザインを合わせてオリジナルで設計。
 
マンションでは撤去できないパイプスペースに合わせて無駄なく収納を造作。
 

天板に投入口を設計し、洗面台内部にゴミ箱を収納できるようにした。

 
 
 
before
 
 
 
 
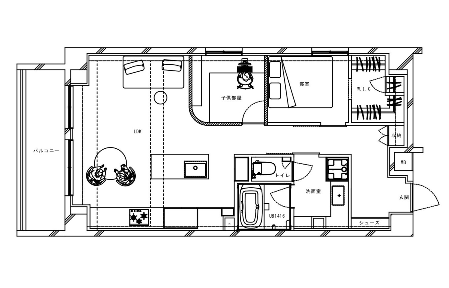
afterプラン図
 

所在:東京都世田谷区
種類:マンションリノベーション
築年数:築6年
面積:60.43 m²
完工:2025年 2月
工事費:2,000万円(床暖・空調工事含まず)