TOP | WORKS | urban living

urban living

経済・文化施設が集中する大阪の中心エリアでありながら 水と緑豊かで風通しが良く、抜け感のあるこのマンション。
 
物件案内時に見たFIX窓からの緑豊かな借景と解放感に心を奪われ購入することに。
 
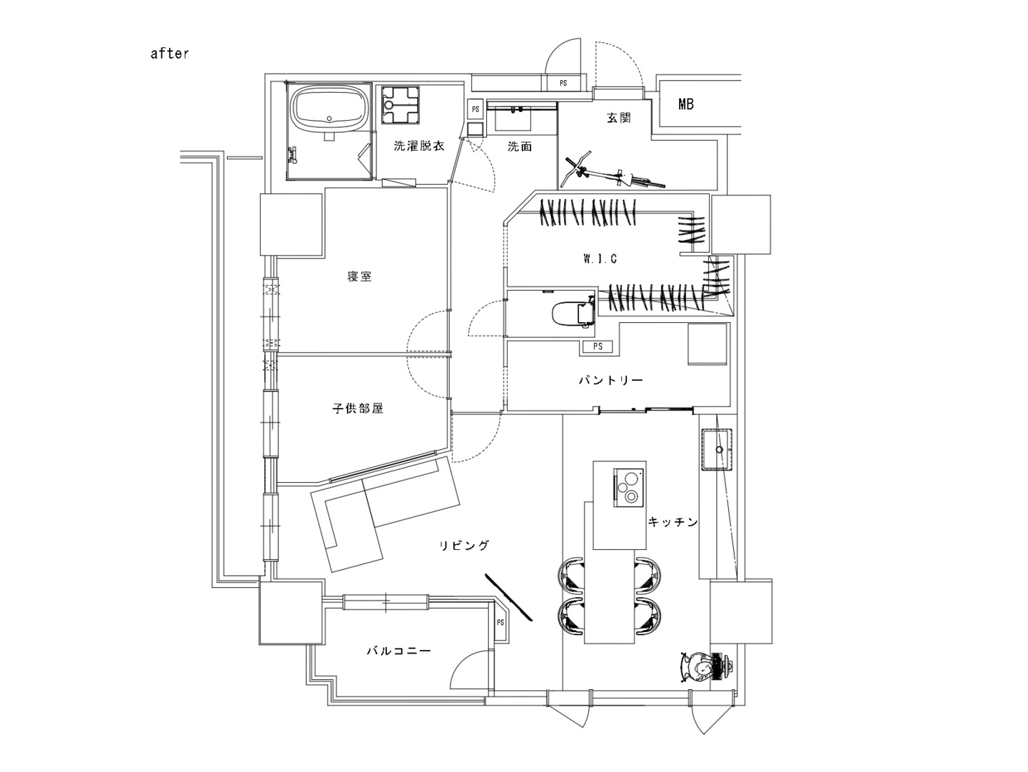
元はクローズなキッチンでしたが窓からの解放感を感じられる場所に移動。
グレーカラーの造作キッチンにオーク材のルーバー天井でモダンとナチュラルをミックス。
このエリアらしい都会的かつ温かみのある暮らし。

urban living

経済・文化施設が集中する大阪の中心エリアでありながら 水と緑豊かで風通しが良く、抜け感のあるこのマンション。
 
物件案内時に見たFIX窓からの緑豊かな借景と解放感に心を奪われ購入することに。
 
元はクローズなキッチンでしたが窓からの解放感を感じられる場所に移動。
グレーカラーの造作キッチンにオーク材のルーバー天井でモダンとナチュラルをミックス。
このエリアらしい都会的かつ温かみのある暮らし。

造作キッチン

キッチンはシンクとコンロを分けたII型で、コンロ側をリビングに対面する形にしてダイニングテーブルを一体で造作したオリジナルキッチン
 

 

大きな窓に面するダイニングキッチンで、自然と都会の眺めを堪能。毎朝いちばんに日差しが入るキッチンで家事も気持ちよくこなせます。
 

リノベーション造作キッチン

吊戸棚はライン照明にして実用性とデザイン性を両立。
 

造作キッチン

奥に広がるパントリーは、キッチン側と廊下側からアプローチできるので使い勝手抜群。ひと目でものの置き場所が分かるオープンシェルフを設置しました。
 

モールテックス

テレビをリビングからもダイニングからも見やすくするため、支えている金物を可動式に。家族それぞれのリラックスタイムに対応する工夫のひとつです。
 

造作キッチン

ダイニングの柱と外壁の間の空間をワークスペースとして活用。
 

洗面室と洗濯・脱衣室を分けて暮らしやすく。
広くとった土間には靴のほか自転車やアウトドア用品も収納できます。
 

子ども部屋には室内窓壁を設けた。斜めにしたことで、キッチン&ダイニングの方向まで見通すことができます。
 

提案時パース

 

格子窓

 

室内窓

before

 

所在:大阪市
種類:マンションリノベーション
築年数:築19年
面積:76.39 m²
完工:2024年 3月
施工費:1,420万円(税別)